Condos
Townhomes
Lofts
Floorplans
Condo Floorplans
Townhome Floorplans
Loft Floorplans
Siteplan
neighbourhood
team Story
Location
Register
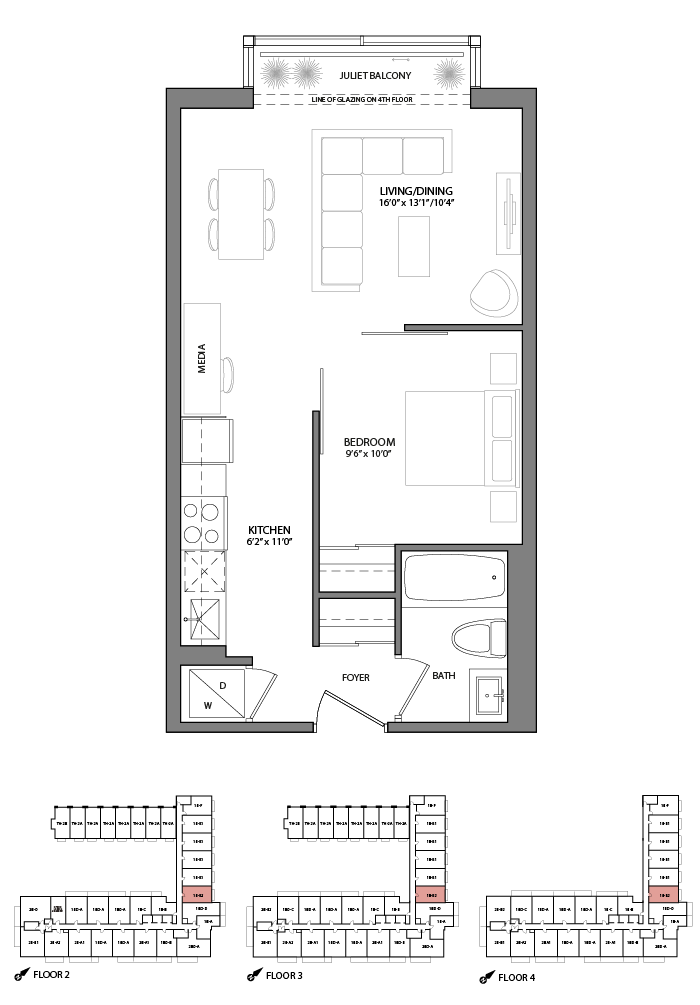
1B
E2
499/528 sq. ft. | 1 bedroom + media
download pdf
Materials, specifications & floor plans are subject to change without notice. All renderings are artist’s conceptions. E.& O.E. Not to scale.